Casa Solare Passiva

Casa Solare Passiva

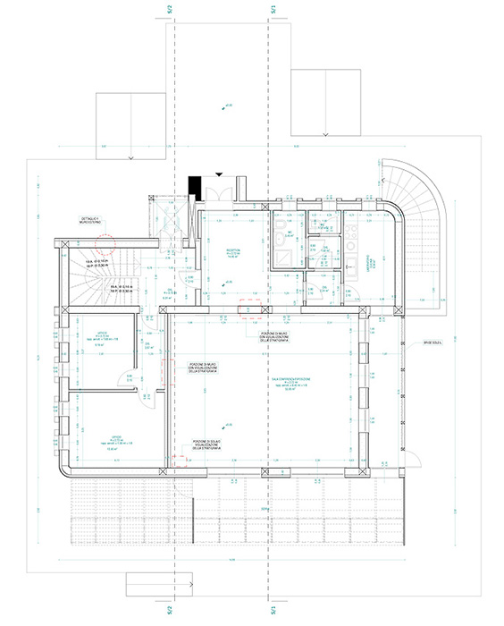
Casa solare passiva a Rosignano

  • PROGETTO: Architetto Francesco Garzella
  • COLLABORATORI: Architetto Roberta Cecchi (ArchiRADAR)

 

Abitazione solare passiva, in classe A+, per il comune di Rosignano (Livorno) realizzata con il supporto di un modello virtuale con metodologia BIM.

 


01 Planimetria  02 Pianta  03 Sezioni  04 Impianti  05 Fotoinserimento  06 Vista3D  07 Sezione3D  08 Sezione3D  

Chi è online

Abbiamo 969 ospiti e nessun utente online

Utenti iscritti al sito

89808